М
Молодежь
К
Компьютеры-и-электроника
Д
Дом-и-сад
С
Стиль-и-уход-за-собой
П
Праздники-и-традиции
Т
Транспорт
П
Путешествия
С
Семейная-жизнь
Ф
Философия-и-религия
Б
Без категории
М
Мир-работы
Х
Хобби-и-рукоделие
И
Искусство-и-развлечения
В
Взаимоотношения
З
Здоровье
К
Кулинария-и-гостеприимство
Ф
Финансы-и-бизнес
П
Питомцы-и-животные
О
Образование
О
Образование-и-коммуникации
3648
3648
18.03.2022 19:54 •  Другие предметы

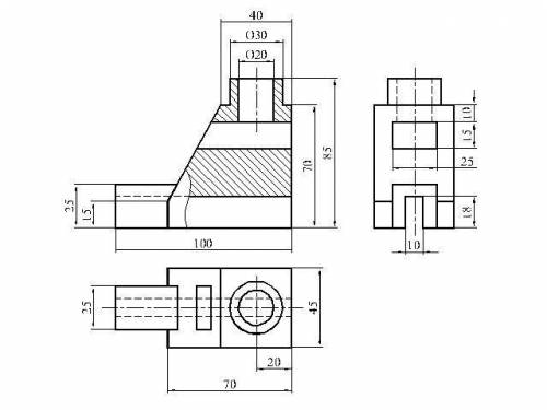
Построить третью проэкцию с применением разрезов, указанных на схеме..

👇
Ответ:

Объяснение:

На первом чертеже главный вид заменила на фронтальный разрез, но это немного не верно, т.к. теряется смысл исполнения детали - см. второй чертеж - это более правильное исполнение (выполнен местный фронтальный разрез).

Нет, оба чертежа выполнены правильно, самое главное не смутить преподавателя.

Выполнить разрезы по указанным схемам для этой детали нет возможности, т.к. главный вид не имеет оси симметрии.


Построить третью проэкцию с применением разрезов, указанных на схеме..
Построить третью проэкцию с применением разрезов, указанных на схеме..
Построить третью проэкцию с применением разрезов, указанных на схеме..
Построить третью проэкцию с применением разрезов, указанных на схеме..
Построить третью проэкцию с применением разрезов, указанных на схеме..
4,5(46 оценок)
Открыть все ответы
Ответ:
Koroleva12112002
Koroleva12112002
18.03.2022

Тому для Раскольникова Соня стає символом вічної жертовності, символом душі, потоптану цим жорстоким світом. Але Соня вірить в якийсь глибинний сенс життя, споконвічний сенс людського буття взагалі. Пішовши на вбивство, Раскольников придушив у собі відчуття повноти життя, задавив в собі бажання жити. А Соня живе цим відчуттям постійно, хоча сама перебуває в жахливому зганьбленої положенні повії.

Образ Соні має два трактування: традиційну і нову, дану В. Я. Кірпотіним. Згідно з першою, в героїні втілені християнські ідеї, по другій - вона носителька народної моральності. У Соні втілений народний характер в його нерозвиненій “дитячій” стадії, причому шлях страждань змушує її еволюціонувати за традиційною схемою релігійної - у бік юродивий - недарма вона настільки часто зіставляється з Лізавету.

4,8(62 оценок)
Ответ:
gasimovaa44
gasimovaa44
18.03.2022

Тактика защиты предполагает организацию действий команды, не владеющей Мячом, направленных на нейтрализацию атакующих действий соперников.

Общекомандный метод игры в защите может быть персональным, зонным и комбинированным. Однако практиковать только один метод игры в защите, учитывая, что в каждом из них есть элементы другого, было бы ошибочно, так как обеднило бы тактику защиты, лишило ее гибкости и ослабило. Методы ведения игры в защите следует строить с учетом индивидуальных качеств игроков и их возможностей.

Тактическое искусство игры в защите сводится к определению того, когда целесообразно держать и преследовать соперника, когда нужно передавать его партнеру и когда играть в зоне.

Все действия обороняющейся команды являются ответными на действия атакующих и организуются в зависимости от особенности тактики соперников. Хорошо организованная оборона не только является фактором успеха, но и накладывает отпечаток на характер дальнейших наступательных действий команды.

Игра в обороне многообразна, многопланова и направлена на оборону ворот, на активную борьбу за овладение мячом и организацию ответных действий.

Как и в нападении, игра в защите состоит из индивидуальных, групповых и командных действий.

Объяснение:

надеюсь что с чем то )

4,8(88 оценок)
Это интересно:
Новые ответы от MOGZ: Другие предметы
logo
Вход Регистрация
Что ты хочешь узнать?
Спроси Mozg
Открыть лучший ответ