М
Молодежь
К
Компьютеры-и-электроника
Д
Дом-и-сад
С
Стиль-и-уход-за-собой
П
Праздники-и-традиции
Т
Транспорт
П
Путешествия
С
Семейная-жизнь
Ф
Философия-и-религия
Б
Без категории
М
Мир-работы
Х
Хобби-и-рукоделие
И
Искусство-и-развлечения
В
Взаимоотношения
З
Здоровье
К
Кулинария-и-гостеприимство
Ф
Финансы-и-бизнес
П
Питомцы-и-животные
О
Образование
О
Образование-и-коммуникации

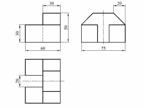
Счерчение ! руководствуясь заданными размерами и соблюдая пропорции между остальными частями детали выполните ее чертеж, удалив части по нанесенной разметке, выбрав за главный вид направление, указанное стрелкой-таков вопрос, , от этого зависит четвертная оценка, там нужно построить вид спереди сверху и слева

👇
Ответ:
iiiin
iiiin
17.02.2020

Объяснение:

+++++++++++++++++++++++++++++++


Счерчение ! руководствуясь заданными размерами и соблюдая пропорции между остальными частями детали
Счерчение ! руководствуясь заданными размерами и соблюдая пропорции между остальными частями детали
Счерчение ! руководствуясь заданными размерами и соблюдая пропорции между остальными частями детали
4,7(12 оценок)
Открыть все ответы
Ответ:
kostya79bat1
kostya79bat1
17.02.2020
Милая и добрая сказка о чудесах в нашей жизни и в нашем мире.

Чудесах "настоящих", фантастических, волшебных (как прекрасное колечко, подаренное главной героине Варюше, которое исполняет желания: дарует здоровье тебе и твоим самым близким людям, приносит радость, позволяет увидеть дальние страны).

И о чудесах рукотворных, которые зависят по большому счету только от нас самих совершенно незнакомому человеку (поделиться с ним махоркой, хотя эта махорка позарез нужна твоему дедушке), найти давно утерянную (казалось бы, навсегда) вещь (главное, не отчаиваться и верить в это), радоваться каждому дню, весне, замечать красоту (природы, людей, поступков и явлений)...

Жить настоящим. Жить здесь и сейчас.

Варюша думала было надеть перстень на указательный палец, чтобы Повидать белый свет со всеми его чудесами, но посмотрела на все эти Цветы, на липкие березовые листочки, на яснее небо и жаркое солнце, Послушала перекличку петухов, звон воды, пересвистывание птиц над полями – и не надела перстенек на указательный палец.

«Успею, – подумала она. – Нигде на белом свете не может быть так хорошо, как у нас в Моховом. Это же прелесть что такое! Не зря ведь дед Кузьма говорит, что наша земля истинный рай и нету другой такой хорошей земли на белом свете!»

Чудесная (в прямом и переносном смыслах) история с неповторимой атмосферой весны.

Варюша стояла, приоткрыв рот, слушала, улыбалась. Ее обдало сильным, теплым, ласковым ветром, и что-то рядом. Закачалась лещина, из ореховых сережек посыпалась желтая пыльца. Кто-то невидимый мимо Варюши, осторожно отводя ветки. Навстречу ему закуковала, закланялась кукушка.

«Кто же это ? А я и не разглядела!» – подумала Варюша.

Она не знала, что это весна мимо нее.

Книга о том, что мечтать, конечно, здорово, но ведь даже обычную жизнь можно превратить в сказку. Можно раскрасить всеми цветами, которыми пожелаешь. Можно увидеть чудо в обыкновенном, а можно сотворить его самому. И колечко здесь - это не только магический инструмент исполнения заветных желаний. Это же такой глубокий символ управления своей жизнью. Я почему-то уверена, что и без колечка дедушка Варюши бы поправился - с такой-то заботой своей внучки. И без колечка жизнь можно сделать радостнее. Колечко - это наши силы, наши поступки, наши ресурсы. Все то, что нам, причем, кажется, что как-то по волшебству, а ведь на самом-то деле мы сами долго и упорно работали над осуществлением своего желания. Так что сказка совсем не простая, как может показаться на первый взгляд. Думаю, что она должна понравиться и детям, и взрослым. Она учит правильным вещам, что особенно актуально в наше время.

Немного жаль, что произведение такое короткое (до сих пор отчего-то не могу привыкнуть к малой прозе)...Но такое красивое и уютное, даже несмотря на такое "холодное" и совершенно безрадостное начало. За тяжелой зимой обязательно придет теплая весна, главное немножко подождать)
4,5(90 оценок)
Ответ:
Sharkade
Sharkade
17.02.2020

1)Не повторяй своих ошибок

2)Человек имеющий совесть плачет, а тот у кого её нет плачет редко

3)Потому что оно отягощает душу, человек живет с этим грузом, с камнем за пазухой, чем вредит в первую очередь себе самому

4)Доверчивость — как движение в одну сторону, как игра в одни ворота: она означает, что мы доверяемся другому, безоглядно и полностью отдаем себя в его руки.

Совсем иное дело — доверие. Отношения доверия — всегда результат взаимных усилий: их можно сравнить с мостом, который соединяет два берега и который построен людьми, живущими по обеим сторонам реки.

Объяснение:

4,7(87 оценок)
Новые ответы от MOGZ: Другие предметы
logo
Вход Регистрация
Что ты хочешь узнать?
Спроси Mozg
Открыть лучший ответ